ON THE BOARDS / IN CONSTRUCTION
Woodfield Commons is a thoughtfully planned cottage-cluster community designed to provide attainable, high-quality housing within a walkable neighborhood setting. The project pairs modest footprints with efficient layouts, shared green space, and durable, low-maintenance materials. Each home is oriented to maximize natural light and privacy while fostering a sense of community through connected pathways and a central commons. The result is a warm, human-scaled environment that supports sustainable living and reflects the values of contemporary Pacific Northwest design.
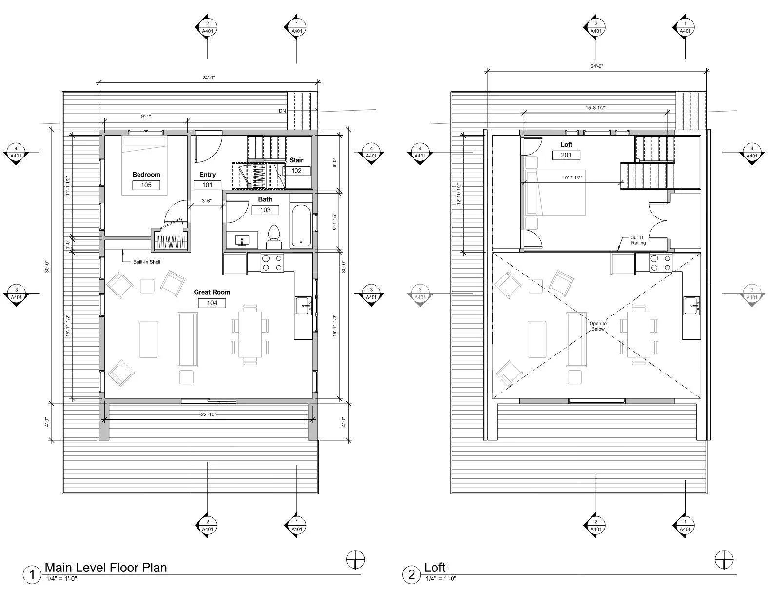
Location: Parkdale, OR
Size: 2,000 SF Single Family Residence
Contractor: Ethan Beck Homes
Year Complete: 2026
Location: N | Portland, Oregon
Size: (3) 1200 SF 2 BR 1.5 BA Townhouses w/(E) SFR on Property
Contractor: Clarkbuilt, Inc.
Start Date: 2023
Primrose Townhomes
Location: Lebanon, OR
Size: 18 Units on .75 Acres
Type: Affordable Multifamily Housing
Location: Clinton | Portland, OR
Size: 2500 SF Main Residence w/600 SF ADU
Contractor: Owen Gabbert LLC
Construction Start: TBD
Location: Grant Park | Portland, Oregon
Size: 700 SF New Construction
Contractor: Clarkbuilt, Inc.
Year Complete: 2023
Location: Mount Hood, Oregon
Size: 3,600 SF New Construction
Contractor: Ethan Beck Homes
Year Complete: 2023
Location: Government Camp, OR
Size: 1200 SF Remodel + Exterior Updates
Contractor: TBD
Construction Start: 2023
Location: Parkdale, OR
Size: 900SF Lower Level Addition
Contractor: Ethan Beck Homes
Start Date: Summer 2023
Location: Lane County, OR
Size: 4,500SF New Construction
Builder: Monarch Pacific LLP
Construction Start: Summer 2023
Location: N | Portland, OR
Size: 720SF New Construction
Contractor: DD&C Contstruction
Completion Date: 2023
Location: Appleton, WA
Size: 915 SF
Construction Start: 2024
Gotham FC Training & Academy
Phase: Preliminary Site Planning Over 4 Phases of Construction
Location: NY, NY
Size: 19 Acres, 150,000 SF Building